Välkommen in i lägenhet 1102
Välplanerad 1 rum och kök
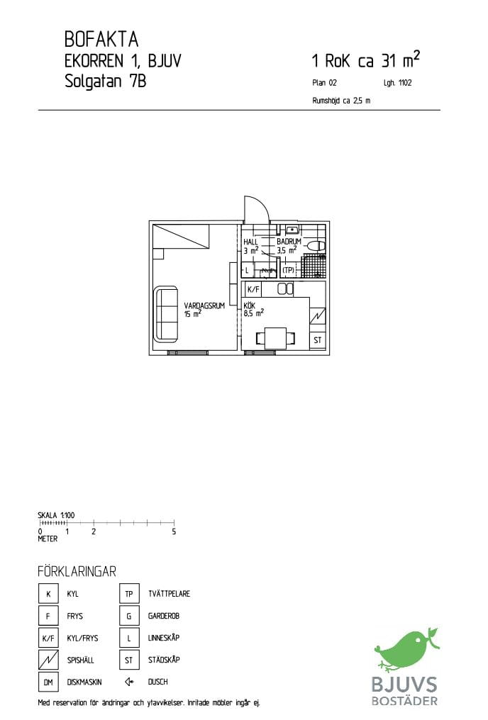
OM LÄGENHETEN
Område: Årstiderna, Bjuv
Adress: Solgatan 7 B
Obj. nr: 311-122005
Lgh. nr: 1102
Rum: 1 rum och kök
Boyta: 31 m2
Våning: 2
Hiss: Nej
Hyra: 6009 kr
Fastighet: Ekorren 1
Tillträde: Omgående!
Välkommen till denna ljusa och trivsamma 1 rok om 31 kvm, belägen på våning 2.
Lägenheten erbjuder en rymlig hall med granitkeramiskt golv.
Lägenheten är inredd med golv från Kährs Luxury Vinyl Tiles (LVT).
Köket erbjuder vita luckor och vita vitvaror som kombineras med rostfria detaljer för att förmedla ett elegant uttryck. Köket är inrett med kyl/frys och spis.
Badrummet är inrett med mattvitt kakel och ljusgrått golv ihop med vit inredning av spegelskåp, handfat och WC för ett stilrent intryck. I badrummet finns det även tvättmaskin och torktumlare för att underlätta vardagen.


Solgatan placerad centralt i Bjuv och har gångavstånd till alla bekvämligheter så som livsmedelsaffär, restaurang, bibliotek och busshållplats Se mer information om området Årstiderna här.
Sök lägenheten nu!
Den här lägenheten är tillgänglig via Lägenhet direkt och har ingen kö. Sök lägenheten genom att skicka ett mejl till oss. Skriv Objektsnumret i ämnesraden och bifoga dina och din eventuella medsökandes inkomstuppgifter. Om din betalningsförmåga bedöms stå i rimlig relation till hyran tas även en kreditupplysning.
- Om du är anställd:
Skicka in en kopia på ditt anställningsavtal och de tre senaste lönespecifikationerna. - Om du får pension eller bidrag:
Skicka in en kopia på underlaget från Försäkringskassan, CSN, Pensionsmyndigheten eller Kommunen där det framgår vilket belopp som betalas ut till dig varje månad.
Det är den som först kan skriva kontrakt som får kontraktet. I de flesta fall gäller tillträde omgående.
Parkering
Parkeringsplatser finns i närheten och hyrs via Easypark
