Välkommen in i lägenhet 1201
Generös 2a på Bjuvshem med hiss
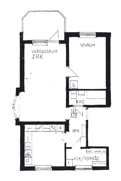
OM LÄGENHETEN
Område: Bjuvshem, Bjuv
Adress: N Ringgatan 4 B
Obj. nr: 409-123164
Lgh. nr: 1201
Rum: 2 rum och kök
Boyta: 69 m2
Våning: 3
Hiss: Ja
Hyra: 8450 kr
Fastighet: Renen 2
Tillträde: 2026-04-01
Nu finns möjlighet att hyra denna trivsamma 2 rum och kök om 69 kvm, belägen på tredje våningen i en fastighet med hiss.
Lägenheten har ett ljust vardagsrum med utgång till balkong, ett kök med ljusa köksluckor och utrustat med diskmaskin, kyl/frys och spis samt ett sovrum med goda förvaringsmöjligheter. Badrummet är utrustat med både tvättmaskin och torktumlare.
Planerade åtgärder
- Målning av innertak


Huset är centralt placerat nära busshållplats och närbutik men har en härlig avskild innergård med träd och grönytor. Lägenheten har säkerhetsdörr och uthyres till varmhyra vilket innebär att uppvärmning ingår i hyran. Läs mer om området här.
Sök lägenheten nu!
Den här lägenheten är tillgänglig via Lägenhet direkt och har ingen kö. Sök lägenheten genom att skicka ett mejl till oss. Skriv Objektsnumret i ämnesraden och bifoga dina och din eventuella medsökandes inkomstuppgifter. Om din betalningsförmåga bedöms stå i rimlig relation till hyran tas även en kreditupplysning.
- Om du är anställd:
Skicka in en kopia på ditt anställningsavtal och de tre senaste lönespecifikationerna. - Om du får pension eller bidrag:
Skicka in en kopia på underlaget från Försäkringskassan, CSN, Pensionsmyndigheten eller Kommunen där det framgår vilket belopp som betalas ut till dig varje månad.
Det är den som först kan skriva kontrakt som får kontraktet. I de flesta fall gäller tillträde omgående.
Parkering
Parkeringsplatser finns i närheten av huset och hyrs för 125 kr/mån
