N Ringgatan 2 B, 4 rok

Välkommen in i lägenhet 1102

Generös 4a på Bjuvshem med hiss

OM LÄGENHETEN

Område: Bjuvshem, Bjuv
Adress: N Ringgatan 2 B
Obj. nr: 410-122128
Lgh. nr: 1102
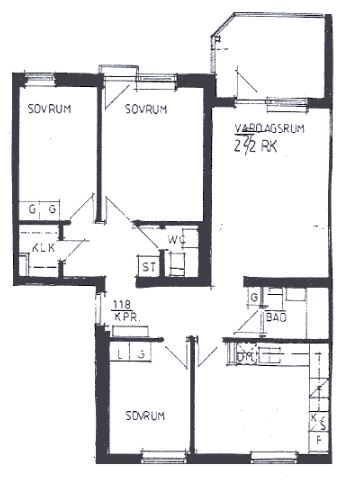
Rum: 4 rum och kök
Boyta: 85 m2
Våning: 2
Hiss: Ja
Hyra: 5465 kr
Fastighet: Renen 2

Tillträde: 2026-02-01

Välkommen in i denna välplanerade fyrarummare om 85 kvm på andra våningen, med en härlig balkong som vetter mot grönområden. Lägenheten har en genomtänkt planlösning med ljusa ytskikt, gott om förvaring och stora fönster som ger rikligt med ljusinsläpp.

Vardagsrum
Rymligt och ljust vardagsrum med plats för både soffgrupp och matbord. Härifrån nås bostadens balkong som vetter mot ett grönområde – en perfekt plats för morgonkaffet eller avkoppling under sommarkvällar.

Kök
Ljust och funktionellt kök med ljusa köksluckor och en matchande bänkskiva, samt köket är utrustat med spis, diskmaskin och kyl/frys.

Sovrum
Bostaden rymmer tre sovrum, alla med goda förvaringsmöjligheter och plats för säng, skrivbord eller garderober.

Badrum
Praktiskt planerat badrum med dusch, WC, handfat och spegel. Ett fräscht utrymme som är enkelt att hålla rent.

Övrigt

Lägenheten har genomgående ljusa väggar som förstärker det generösa ljusinsläppet. Här bor man nära grönområden, skolor, förskola och goda kommunikationer, vilket gör bostaden idealisk för barnfamiljen som söker ett bekvämt och trivsamt hem.

Huset är centralt placerat nära busshållplats och närbutik men har en härlig avskild innergård med träd och grönytor. Lägenheten har säkerhetsdörr och uthyres till varmhyra vilket innebär att uppvärmning ingår i hyran. Läs mer om området här.

Parkering

Parkeringsplatser finns i närheten av huset och hyrs för 125 kr/mån

Sök lediga parkeringsplatser