Välkommen in i lägenhet 1202
Fin och välplanerad 1:a
OM LÄGENHETEN
Område: Ekeby
Adress: Bjerringsväg 5 B
Obj. nr: 702-123017
Lgh. nr: 1202
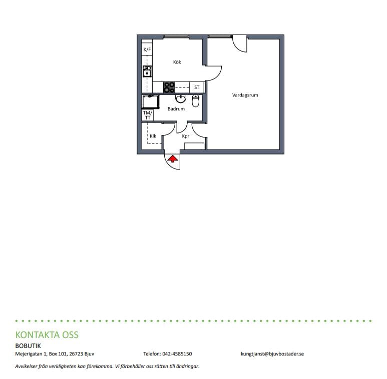
Rum: 1 rum och kök
Boyta: 42 m2
Våning: 3
Hiss: Nej
Hyra: 6154 kr
Fastighet: Elestorp
Tillträde: 2025-12-01
Välkommen till denna välplanerade etta om 42 kvm, belägen på tredje våningen med fönster som vetter mot innegården. Lägenheten är fördelad på hall, badrum, kök och vardagsrum.
Vardagsrum
Ljust och luftigt vardagsrum som ger möjlighet att separera sällskapsdel och sovplats. Parkettgolv och målade väggar i ljusa kulörer.
Kök
Fräscht och välutrustat kök med ljusa luckor, matchande bänkskiva och gott om förvaringsutrymmen. Köket är inrett med kyl/frys och spis med varmluftsugn. Här finns även plats för en matgrupp för 2–4 personer.
Badrum
Helkaklat badrum i vitt och grått, utrustat med dusch, WC, handfat, spegelskåp samt tvättmaskin och torktumlare för bekvämlighet.
Hall
Praktisk hall med förvaring som knyter samman bostadens rum på ett smidigt sätt.

Sök lägenheten nu!
Den här lägenheten är tillgänglig via Lägenhet direkt och har ingen kö. Sök lägenheten genom att skicka ett mejl till oss. Skriv Objektsnumret i ämnesraden och bifoga dina och din eventuella medsökandes inkomstuppgifter. Om din betalningsförmåga bedöms stå i rimlig relation till hyran tas även en kreditupplysning.
- Om du är anställd:
Skicka in en kopia på ditt anställningsavtal och de tre senaste lönespecifikationerna. - Om du får pension eller bidrag:
Skicka in en kopia på underlaget från Försäkringskassan, CSN, Pensionsmyndigheten eller Kommunen där det framgår vilket belopp som betalas ut till dig varje månad.
Det är den som först kan skriva kontrakt som får kontraktet. I de flesta fall gäller tillträde omgående.